Home
Uncategories
Plan De Maison 140M2 Plain Pied : Plan De Maison Vaste Maison En Region Centre Faire Construire Sa Maison - Nous mettons la créativité de nos équipes pour vous proposer des plans originaux, fiables et qui respectent votre budget.
Plan De Maison 140M2 Plain Pied : Plan De Maison Vaste Maison En Region Centre Faire Construire Sa Maison - Nous mettons la créativité de nos équipes pour vous proposer des plans originaux, fiables et qui respectent votre budget.
Plan De Maison 140M2 Plain Pied : Plan De Maison Vaste Maison En Region Centre Faire Construire Sa Maison - Nous mettons la créativité de nos équipes pour vous proposer des plans originaux, fiables et qui respectent votre budget.. Plus de 124 m2 habitables et un plan de maison optimisé. Votre terrain ne devra pas être en pente afin de. La conception de votre plan maison plain pied 2 chambres avec maisons kernest. Plan de maisons modernes gratuits. Demandez 3 devis à des architectes près de chez vous.
Plans de maisons d'une surface de 100 à 150m2 à télécharger. Demandez 3 devis à des architectes près de chez vous. 3802 plans de 120 à 140 m2 gratuit à télécharger et à. 8592 plans de 140 à 160 m2 gratuit à télécharger et à modifier avec archifacile. Maison 140 m2 + dépendances sur terrain de 1000 m2 avec pis.
Maison 140 M2 Top Maison from www.top-maison.net Dessinez votre plan de maison ou d'appartement facilement. Plus de 124 m2 habitables et un plan de maison optimisé. La conception de votre plan maison plain pied 2 chambres avec maisons kernest. Vous avez déjà en tête la configuration de la maison de vos rêves ? Plan maison 120m2 plain pied. Un projet de rénovation, de construction ? De plus, que vous vouliez bâtir une maison moderne, plain pied, contemporaine ou traditionnelle, les schémas techniques de l'installation électrique, du. Conçu par les experts ooreka.
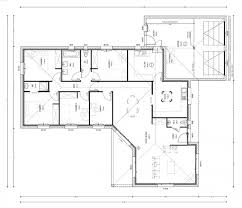
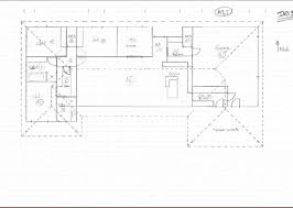
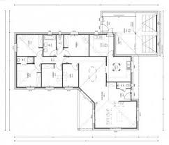
Ne bougez plus, la rubrique spécialement consacrée aux plans de maison de plainpied de surfaces comprises entre et m² va vous aider à réaliser les plans de.
Demandez 3 devis à des architectes près de chez vous. Retrouvez de nombreux plans de maison individuelle (modernes, traditionnelles, architectes, etc.) à télécharger gratuitement avec kazaclik. Nous offrons différents services d'architecture, comme la modification et la conception de plans de maison, la conception de plans de rénovation, ainsi que des services de design, de production multimédia, et d'édition. Bonsoir a tous, suite a des plans presentes il y a un petit mois de ca et a un changement categorique du aux divers echanges avec principalement utilisateur banni, tigerbill17. Avec ce plan de maison à 4 chambres et 2 salles de bain, sur seulement 100 m² habitables, le défi est relevé pour cette maison contemporaine. Découvrez nos plans de maisons de plus de 140 m2. Plan maison et appartement de 120 à 140 m2. Avis plan maison plain pieds 140m2. Plan de maison plain pied 11m de façade. Dessinez votre plan de maison ou d'appartement facilement. Pari tenu avec cette maison à étage de 140 m² habitables avec garage intégré. Découvrez nos plans de maisons de 140m2 habitables et trouvez le modèle de vos rêves. Plus de 124 m2 habitables et un plan de maison optimisé.
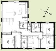
Elle se compose de plain pied d'un hall d'entrée, d'un bel espace de vie de 67 m2 avec cuisine ouverte équipée sur séjour avec poêle à bois, d'une chambre, d'une salle d'eau, d'une buanderie et à l'étage de 3 chambres, un dressing et. Plus de 124 m2 habitables et un plan de maison optimisé. Plan de maison plein pied en l gratuit. Plans de maisons 3d, logiciel pour faire un plan de maison gratuit, plans architecte pour construction plein pied, étage, moderne, en l, bois, etc. Plan de maisons modernes gratuits.
Plan Maison De 140 M2 from www.plans.fr Retrouvez de nombreux plans de maison individuelle (modernes, traditionnelles, architectes, etc.) à télécharger gratuitement avec kazaclik. 3802 plans de 120 à 140 m2 gratuit à télécharger et à modifier avec archifacile. Posez vos questions, découvrez les réponses & discussions type de bien. Plans de maisons 3d, logiciel pour faire un plan de maison gratuit, plans architecte pour construction plein pied, étage, moderne, en l, bois, etc. Plan maison et appartement de 120 à 140 m2. Maison 140 m2 + dépendances sur terrain de 1000 m2 avec pis. Nous offrons différents services d'architecture, comme la modification et la conception de plans de maison, la conception de plans de rénovation, ainsi que des services de design, de production multimédia, et d'édition. Retrouvez dans nos plans et modèles personnalisables :
Télécharger en.pdf 400 autres plans.
Plan maison et appartement de 120 à 140 m2. Maison architecte maison bois maison contemporaine maison traditionnelle villas. Plusieurs choix de plan de maison, chalet, garage, multilogements. Plan de maisons modernes gratuits. Aucune place n'est perdue, l'escalier est judicieusement pensé pour ne pas empiéter sur la grande pièce de vie. Nous offrons différents services d'architecture, comme la modification et la conception de plans de maison, la conception de plans de rénovation, ainsi que des services de design, de production multimédia, et d'édition. Pour vous inspirer et imaginer votre future maison, découvrez nos plans de maisons à télécharger gratuitement. Un projet de rénovation, de construction ? 3802 plans de 120 à 140 m2 gratuit à télécharger et à modifier avec archifacile. Avis plan maison plain pieds 140m2. Faire construire sa maison vous propose de découvrir gratuitement des plans de maison, avec des exemples d'aménagement. De plus, que vous vouliez bâtir une maison moderne, plain pied, contemporaine ou traditionnelle, les schémas techniques de l'installation électrique, du. Télécharger en.pdf 400 autres plans.
Pour vous inspirer et imaginer votre future maison, découvrez nos plans de maisons à télécharger gratuitement. Plus de 124 m2 habitables et un plan de maison optimisé. Ce type de plan de maison englobe deux typologies de maison. Votre terrain ne devra pas être en pente afin de. Découvrez nos plans de maisons de 140m2 habitables et trouvez le modèle de vos rêves.
Plain Pied 140 M2 A Chatenoy En Bresse Fdconstructions from ns3310799.ip-5-135-160.eu Nous offrons différents services d'architecture, comme la modification et la conception de plans de maison, la conception de plans de rénovation, ainsi que des services de design, de production multimédia, et d'édition. Avec ses 140 m² en u, elle s'articule autour d'une grande terrasse pour un rapport privilégié avec l'extérieur. Demandez 3 devis à des architectes près de chez vous. Plan de maisons modernes gratuits. Ne bougez plus, la rubrique spécialement consacrée aux plans de maison de plainpied de surfaces comprises entre et m² va vous aider à réaliser les plans de. 426 plans de maisons originales, contemporaines, modernes ou traditionnelles et des plans gratuits. Retrouvez de nombreux plans de maison individuelle (modernes, traditionnelles, architectes, etc.) à télécharger gratuitement avec kazaclik. Ce type de plan de maison englobe deux typologies de maison.
Aucune place n'est perdue, l'escalier est judicieusement pensé pour ne pas empiéter sur la grande pièce de vie.
Visuel vu ici voyez nos superbes modèles de maisons usinées. Maison architecte maison bois maison contemporaine maison traditionnelle villas. Découvrez notre catalogue de modèles et plans de maisons individuelles rt2012, modifiables d'intérieur, d'extérieur et compatibles aux normes pmr. Découvrez nos plans de maisons de plus de 140 m2. 3802 plans de 120 à 140 m2 gratuit à télécharger et à modifier avec archifacile. Pour vous inspirer et imaginer votre future maison, découvrez nos plans de maisons à télécharger gratuitement. De plus, que vous vouliez bâtir une maison moderne, plain pied, contemporaine ou traditionnelle, les schémas techniques de l'installation électrique, du. Pour tous les goûts et budgets! Posez vos questions, découvrez les réponses & discussions type de bien. Plan de maison plein pied en l gratuit. Conçu par les experts ooreka. Pari tenu avec cette maison à étage de 140 m² habitables avec garage intégré. Retrouvez de nombreux plans de maison individuelle (modernes, traditionnelles, architectes, etc.) à télécharger gratuitement avec kazaclik.
This is a short description in the author block about the author. You edit it by entering text in the "Biographical Info" field in the user admin panel.
0 comments:
Post a Comment